\CL Planningのこだわり/

CL Planning
by 株式会社トーエイ建設産業
沖縄県島尻郡八重瀬町字東風平391-5



















中古で住宅を購入。
ご夫婦+お子様4人(男子大学生、男子高校生、小学生男子、小学生女子)
の6人家族。お兄ちゃんたちはもうそろそろ自立する時期かも・・・ということで、ちょうどライフスタイルの変わり目の時期でした。
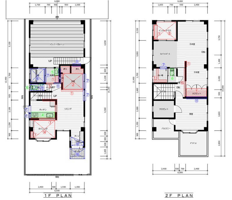
既存建物121.54㎡(36.76坪)をベースに増築は行わずプランニングを行っていきました★
リノベーションの場合、新築とは違い面積や外壁の位置、階段の位置などの制限がある中でのプランニングとなるのですが、お打ち合わせではライフスタイルのお聴き取りなどを重視し、できる限り思い描く理想の住まいを実現できるように心がけております☺
▼
▼
▼
G様邸の物件は、敷地の形状と家の配置、立地の条件上、外部から家へのアプローチがかなり難しい状態でした。
車社会の沖縄、また、車を利用しないと買い物などに行けない立地条件にもかかわらず、玄関がある側からは車付けが不可能な状態でした。
既存では車庫~洗面室への出入りは可能でしたが、誰かがお風呂に入っている状況の場合には、建物外周を通って玄関へのアプローチとなるのですが、その通路幅はカニ歩きでやっと人が一人通れる程度の幅しかありませんでした。
それらのG様のお困りごとを配慮したうえで、車庫から住宅内へのアプローチを重視した間取りを考案しました。


.jpg)
.jpg)
▼
▼
▼
VRやご提案資料をご確認いただき、
お客様のご希望を追加して更にプランをブラッシュアップ★
コスト感を配慮しながら、既存を再利用できるところなどを提案しながら最終決定していきました♪


インテリアにかなり悩まれていたお客様、インテリアコーディネーターによるコーディネートのご提案をさせていただきました★








何千、何万種類とある壁紙もいくつかパターンを絞って、3Dのソフトを使いながら、実際にイメージをご覧いただき決定していきました♪
照明器具についても、丁寧にお打合せをして決定していきます♪
明るさは十分か? 使い勝手に合った色温度になっているか? デザインはどんなのがいいか?
サイズは空間に合っているか? 決定した内装に合った照明器具か?
などなど・・・
様々な視点から器具選びをしていきます★
また、ネットショッピングが苦手なお客様の場合は、当社でのご注文はもちろん、ニトリさんなど市販品で入手しやすい商品なども視野に入れながら決定をしていきます^^


▼
▼
▼
解体の着工前には、アスベストの検体検査をしっかりと行っていきます。
G様邸では、一部の天井材にアスベストが含まれており、それらを専門で撤去する解体業者さんによる撤去を行ったうえでの通常解体工事となりました。
そのようなケースの場合でも、きちんとアスベスト撤去の費用をあらかじめお伝えして工事を進めてまいります。




また、特に中古で購入された物件の場合は実際にお客様が住まわれていないため、着工されてから気づくことも多々あります。
以前の建物の持ち主の方がペットを飼育していたことから、そのペットトイレを置いていたと思われるスペースの床下が匂いを発しておりました。匂いに関しては、人にとっても感じ方が大きく違うこと、また、その日の湿度によっても大きく左右されてきます。
着工後に気になってしまったことについても、お客様のご要望をきちんとお伺いし、相談をしながら工事を進めていきます^^



▶

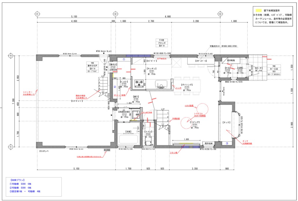
リビングの一角、窓際にはヌックを造作しました。

▶

階段は一部の壁を撤去し、アイアン風のオープン手摺を設置♪
▼
▼
▼

▶

(既存)玄関➡玄関へ
玄関収納を塗装したり、タイルの張替え、玄関ドアの取替などを行いました♪

▶

(既存)和室・リビング➡ダイニングキッチンへ
キッチンの位置を大移動し、家事ラク動線を確保♪キッチンの腰壁には立上りをつけることで、作業中の手元の乱雑さがリビング側から見えないようにしました。

▶

(既存)ダイニングキッチン➡リビングへ
TVの設置場所を確保するため、不要な勝手口ドアや窓を撤去しました。テレビの面はフカシ壁などをし、裏に間接照明を設置することで、家族でTV鑑賞を落ち着いた雰囲気でできる空間つくりをしました★
窓際には「ヌック」を設けました^^

▶

(既存)和室・リビング➡ダイニングキッチンへ
(既存)和室の床の間背面の外壁を解体し、車庫との出入りができるようにしました♪
ダイニングテーブルやスタディカウンターも造作で制作しました。ダイニング横にはティッシュなどを置くスペースを設けたり、テーブルの下には引出しを設置し、カトラリーなどを収納して家族がそれぞれ自分で食事の準備をする仕組みを作りました♪

▶

(既存)階段➡オープン手摺の階段へ
階段をハーフオープンにすることで、家全体が明るく見通し良くなりました✨

▶

(既存)ダイニング➡リビング ヌックへ
孤立気味だった(既存)ダイニング箇所の間仕切り壁を撤去することで、一体感のあるLDK空間に✨
ヌックの下には引出しを設けることで収納を確保!サイドや出窓はカウンターとして利用できるようにし、飲み物やスナックなどを置いたり、携帯を充電して置いたり・・よりヌックがくつろげる空間となるようにしました。

▶

(既存)浴室➡浴室へ
浴室の位置は動かさず、お手入れのしやすい、ぴったりサイズのユニットバスを設置しました✨

▶

(既存)洗面脱衣室➡洗面脱衣室へ
入口を変更し、コンパクトながら明るく清潔感のある洗面脱衣室に変身✨

▶

(既存)1F トイレ➡トイレへ
トイレの位置はそのままに、湿式工法の内装を変身✨

▶

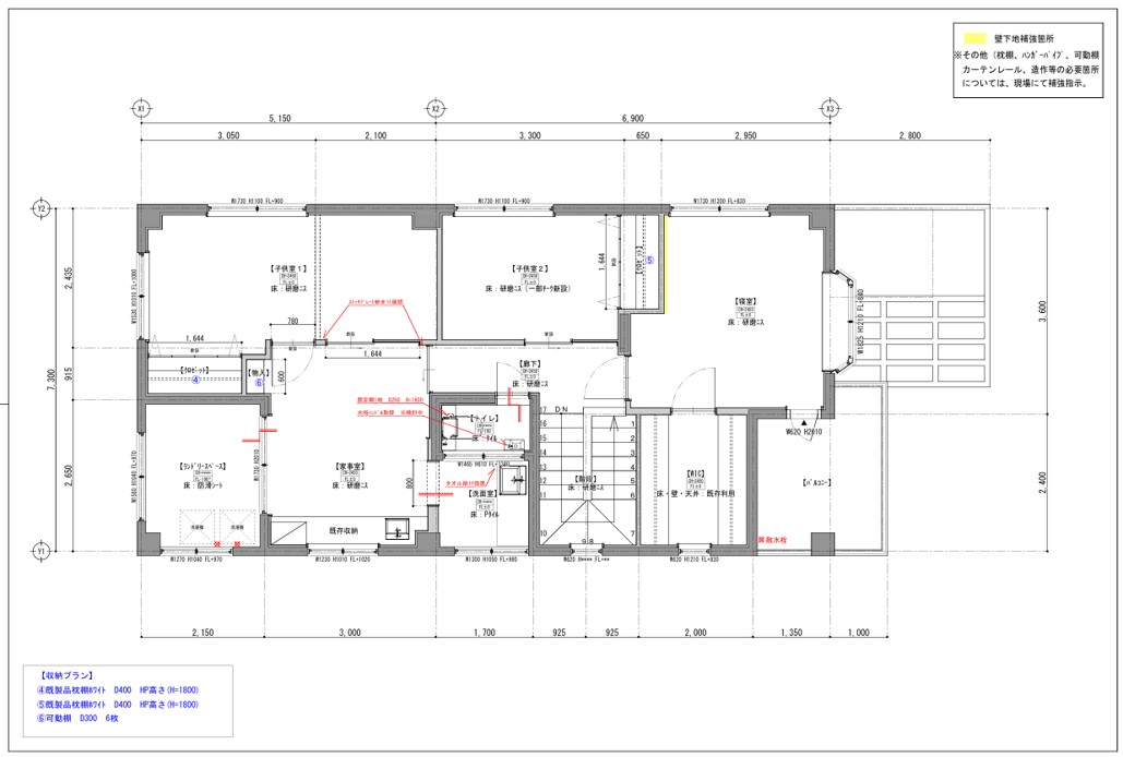
(既存)階段➡階段へ
既存の階段を再利用しました✨壁紙や照明の変更で明るい雰囲気に変身✨

▶

(既存)2F トイレ➡トイレへ
トイレの位置はそのままに、湿式工法の内装を変身✨

▶

(既存)洗濯室➡セカンド洗面室へ
バリアフリーへ変更し、お化粧などのできるカウンター付きの洗面台を設置✨

▶

(既存)家事室➡家事室へ
既存の家事室を再利用✨カウンターの塗装や壁紙のやり替えで明るい雰囲気に変身✨

▶

(既存)物干場➡洗濯室・物干場へ
床材を撤去し清潔感のある屋外用防滑シートへ張替え✨
洗濯機2台・ガス衣類乾燥機が設置でき、天気に左右されず物干しができる空間になりました♪

▶

(既存)ホール➡子供室へ
新たに間仕切り壁を設置し、2ドア1ルームの子供部屋としました✨

▶

(既存)ホール➡子供室へ
新たに間仕切り壁やクロゼットを設置し、2ドア1ルームの子供部屋としました✨
家づくりはご家族のライフスタイルに大きく左右されてしまいます。ご相談にいらっしゃった当時は、ちょうどG様にとってその大きな分かれ道が来るであろう手前の時期で、間取りの構成や使い勝手についてとても悩まれていたのを覚えています。
打合せの回を追うごとに様々な課題に直面し大変ながらも最後まで伴走させていただきました♪
内装に関しても、分からないながらもお好みは必ずあります。そう!これこれ!を共に模索し、お打合せできたことをうれしく思います★
G様、工事に携わった皆様、ありがとうございました★

対応エリア
那覇市、糸満市、豊見城市、南城市、与那原町、南風原町、八重瀬町、浦添市、宜野湾市、沖縄市、北谷町、西原町、中城村、北中城村 ※その他のエリアは要相談となります。