\CL Planningのこだわり/

CL Planning
by 株式会社トーエイ建設産業
沖縄県島尻郡八重瀬町字東風平391-5

















中古でご購入した2階建ての住宅を
(1F)お母様
(2F)K様ご夫婦+ベビーちゃん1人+ワンちゃん
の2世帯住宅へリノベーションをしたいとお問合せを頂きました。
お問合せをいただいた当時はまだご結婚されていなかったK様ですが、長期にわたるお打ち合わせやご検討期間のなかでおめでたいことにご結婚が決定★
家族構成が変わると自然とご検討事項も変化していきます^^
既存建物2F:64.80㎡(19.60坪)をベースにプランニングを行っていきました★
▼
▼
▼
ご結婚が決定する以前にプランニングした内容になります☺
隠れ家の和風料亭に訪れたような雰囲気のLDK空間
親族が集う場所でもある2階の子世帯はなるべくたくさんの人が収容できるように、さらに将来の家族構成も考慮しながら家事ラクにも配慮したプランとしました^^





来客の対応を見込んで玄関正面に客間を配置したプラン
水回りの使い勝手や収納計画にも配慮しました★





▼
▼
▼
VRやご提案資料をご確認いただき、
親御様に風水などのご要望をプラス+しながら、更にプランをブラッシュアップ♪
ご結婚後は実用性や収納などにもさらに配慮しながら決定したプランがコチラ☞
インテリアの雰囲気も大きく路線変更しました^^
また、既存の間取りに近い配置とすることでコスト面にも配慮しています。



K様ご結婚後は、家族が増えてより収納するものも増えていくことを見込んで、収納計画についても改めて見直しを行っていきました。
当社で推奨しているのが
【適材適所収納】収納はスペースのみ確保するのではなく、その物が使いやすい適した場所に収納することで、片づけやすく家をキレイに保つことができます。
今回特に気になったのが、水回りエリアの収納・・
通常2帖ほどの洗面脱衣室の場合、洗面台と洗濯機置き場で目いっぱいで収納を確保するのが難しいのです💦
洗濯機の上の空間が空きがあれば、あとでホームセンターなどで洗濯機上の収納を購入して対応することが可能なのですが、近年ほとんどのお宅でその位置にはガス衣類乾燥機が場所をとってしまい、収納できる部分がほとんどありません💦
あとでどうにか考えます、というお客様も多くいらっしゃるのですが、あとで考えてもどうにかなるわけではなく、床置きのありあわせの収納で対応せざるを得なくなってしまい、せっかくこだわった洗面空間も台無し(´;ω;`)
そんな時に、私がよくご提案させていただくのがEIDAIさんの壁厚収納シリーズルルボの「スリムインパウダー」という商品になります★(EIDAIさんHPより画像拝借↓)



洗面室で最低限必要な
・タオルを置くスペース
・着替えを置くスペース
・洗濯洗剤を置くスペース
を確保することができます✨
必要な面積もほとんどなく、必要なのは室内側の壁💡
壁厚を利用して壁に埋め込む収納なので約13㎝程の壁が室内側に必要になります。
注意してほしいのが、タオルハンガーがちょうど歩き始め位のお子さんの頭の高さになってきますので、製品を今回のK様邸のように人が出入りする通路に設置する場合はその点に配慮しながら使用する必要があります。
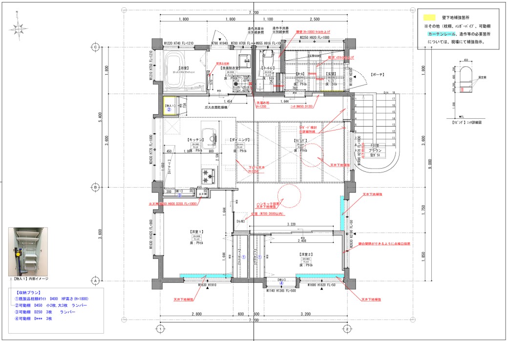
また、キッチン横(↓プラン図の青色箇所)に奥行き30㎝程のオープン棚をプラスし、食品などのキッチン用品はこちらの棚に収納できるようにすることで、冷蔵庫横の扉付きの収納(↓プラン図の黄色箇所)は掃除用具やリネンなどを収納する想定で計画が進みました。
「何を収納するのか?」によって、棚の作り方を一工夫すると収納量を増やすことができます💡
今回のK様邸では、収納の中にルンバやスティック掃除機などを収納するとのことで、スティック掃除機を置くスペース以外は半分のサイズの棚を設けて、下部にはルンバ、ルンバの上は収納として利用できるようにしました💡
扉もルンバが出入りできるように特注で扉のサイズを調整しました。



それらをあらかじめ検討することによって、コンセントの配置なども決まってきます^^
▼
▼
▼




今回は、K様も解体工事にご参加。DIYならぬ・・・
K様ご自身も建築に携わるお仕事をされており、お仕事の隙間時間を使って、ご自宅の既存設備の撤去などを行っていきました★




タンクの清掃
沖縄の従来の住宅ではほとんどの住宅の屋根の上にタンクを備えている住宅も多いはず・・
ですが、高所にあったりなかなか日々の生活で視界に入ってこないので、定期的な清掃がおろそかになりがち・・
当社の最近のリフォーム工事ではリノベをきっかけにタンクではなく、水道を直結にする工事も増えてきていますが、もし再利用をされる場合には、清掃のご提案もさせていただいてます♪



TVコーナーができるまで
何もない、ところからこのように図面の内容をもとにカタチにしていきます。すごい✨
左側の収納にブルーレイなどのオーディオを収納するので、TVの背面の壁の中にはつなぐための配管が通ってます✨
この後の壁紙を張る作業もきっと大変だったはず・・(木格子の部分とアーチの下がり壁の取り合い部分)
本当に現場に行くたびに、職人さんってすごいなぁって感激させられます✨



謎の小窓
お部屋を間仕切る際に、窓の手前に壁を作るケースが多々あります。
そのままふさいでしまってもいいのですが、壁と窓の隙間の掃除に苦労してしまうはず・・
とのことで、現場スタッフの配慮の造作です^^
カギを開け閉めできるようにカギのある位置に小窓を設け、窓を開けたら、バルコニー側から窓と壁の隙間をお手入れすることができます✨天才✨



謎の箱
こちらも現場スタッフの配慮の造作^^
リノベの現場って、全体的にきれいになっていくので、ビフォーの時点では気にならなかったものが、他がきれいになることでより悪目立ちしてくることがあります💡
取り換えなどできれいにできるものならいいのですが、こんな風に隠してしまうのも一つの方法👏✨



ハンモック設置するまでの道のり
当社のシンボルともなりつつあるハンモック
おうち時間を楽しく、そして時にはくつろぎのアイテムとして活躍しているハンモックですが、1点で人の体重の重さが加わるということもあり、下地はしっかりと補強しています。
既存住宅の状況によっても補強の仕方は変わってくるのですが、今回はちょうどコンクリートの梁がある位置での設置だったため、それを下地に特製の金物を製作して設置しました★

▶

TVコーナー
最後までなかなかイメージがわかない、どうやったらおしゃれになるのかしら、と悩まれていたTVコーナー。
当社インテリアコーディネーターにてご提案させていただきました★

▶

造作洗面台
毎日使っていて気分が上がる造作の洗面台。
使っているドライヤーの置き場所などっも細かくお伺いしながらコンセントの配置なども考えていきました♪

▶

造作トイレ手洗い
超絶おしゃれなトイレ♪
まるでおしゃれなカフェのトイレのよう・・
使い勝手にも配慮しながらボウルや水栓、カウンターの高さや長さを決めていきました★
▼
▼
▼

▶

(既存)玄関➡玄関へ
K様こだわりのレンガの壁紙と框のモザイクタイルがおしゃれな玄関に変身✨

▶

(既存)玄関➡親世帯 玄関へ
おしゃれが大渋滞の玄関空間♪
既存であるものをうまく活かしながらの空間づくりとなりました★
天井の格子や玄関収納は塗装で大きくイメチェンしました★

▶

(既存)トイレ➡トイレへ
同じ空間とは思えないほど大変身したトイレ✨
湿式のタイル仕上げのトイレの壁はレンガ調のタイルで仕上げました^^タイルもこだわりぬいた一品。

▶

(既存)LDK➡LDKへ
プランが決まってからも、この格子はなくしたほうがカッコよくなるのでは?と心配されていたK様
格子がないならないなりのカッコいい空間になりますし、あればそれを活かしてカッコよく仕上げられます🔥
と格子残しのプランで強行突破!
・・・・・すんごくかっこいいLDKになりました♡

▶

(既存)LDK➡LDKへ
リビングは行事の際に親戚が集まるので広さを確保。
仏壇を置くスペースもあらかじめコンセントや排気のための換気扇を設置しました♪

▶

(既存)LDK➡LDKへ
大きな窓も魅力的なのですが、近年はテレビもかなり大きい製品を購入されるご家庭も多く、その設置位置はあらかじめ検討しておかないと家具配置や動線、配線計画にも大きく影響してきてしまいます💦
今回は、キッチン背面の窓やリビング横のお部屋の窓から明るさを確保できることもあり、既存の大きな窓を撤去してTVコーナーをデザインさせていただきました✨

▶

(既存)キッチン➡対面キッチンへ
壁付けだった既存のキッチンを対面キッチンへ・・・
収納にも配慮し、沖縄火ヌ神も香炉のサイズや数などをあらかじめお伺いしてサイズの設定を行いました。
キッチンもこだわりのキッチンでカッコよく仕上がりました✨

▶

(既存)和室➡リビング・洋室へ
行事の際に親戚が集まれるようリビングを広めに確保し、稼働間仕切りで仕切れる洋室に✨

▶

(既存)和室➡洋室へ
既存の窓を活かしながら、お部屋としての機能を配慮して一部は壁で窓をふさぐ仕上げとしました✨

▶

(既存)洋室➡寝室へ
寝室はシンプルで落ち着いた空間に変身✨

▶

(既存)洗面脱衣室➡乾式の洗面脱衣室へ
以前は床がタイル仕上げで水で床洗いのできる湿式タイプの洗面室を塩ビ床仕上げの乾式タイプへ変更✨
床の冷たさやお子さんが転倒した際の衝撃もタイルよりは緩和されるので、洗面室は乾式がGOOD!

▶

(既存)浴室➡ユニットバスへ
タイル式の従来の浴室から1616サイズのユニットバスへと変身✨
お仕事でなかなかお打ち合わせの時間が確保できなかったK様。何度も決定事項などをせかしてしまい申し訳ないなぁという気持ちもありつつ、お子さんとわんちゃんと快適に過ごせるご自宅が完成してホッとしております^^
当初念願だった「和モダン」から周囲のご家族などのアドバイスも受けながら「カフェスタイル」への大きなイメチェンでしたが、K様ご本人も納得のいく仕上がりになってたら幸いです♪
使い勝手などについては当社でいろいろとアドバイスをさせていただきましたが、インテリアに関してのマテリアルの決定についてはご夫婦で時間をかけて検討されててとても素敵なおうちに仕上がったと思います♪
K様、工事に携わった皆様、ありがとうございました★

対応エリア
那覇市、糸満市、豊見城市、南城市、与那原町、南風原町、八重瀬町、浦添市、宜野湾市、沖縄市、北谷町、西原町、中城村、北中城村 ※その他のエリアは要相談となります。