\CL Planningのこだわり/

CL Planning
by 株式会社トーエイ建設産業
沖縄県島尻郡八重瀬町字東風平391-5














ご両親が住まわれる3階建ての建物の改修をご希望。
(1階)ホール➡S様邸 ご夫婦+お子さん+ワンちゃん
(2階)ご両親世帯
(3階)賃貸
1階のフロアを改修しS様ご家族が住まわれるようにフルリノベーション。
既存建物88.01㎡(26.62坪)をベースにプランニングを行っていきました★
▼
▼
▼









▼
▼
▼
プランBをベースにお客様のご要望を+(プラス)
寝室はLDKに面して間仕切り壁をなくしオープンなワンルームタイプをイメージした間取りとしました♪
また、水回りもご希望の割り付けへと変更★



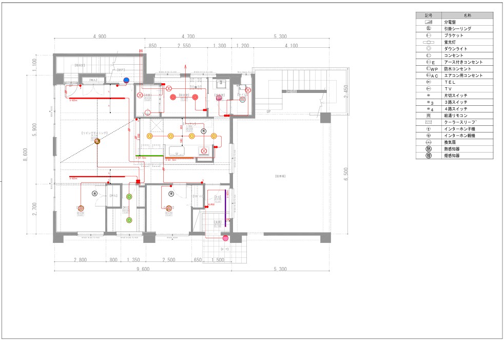
電気のプランについても、丁寧にお打合せをして決定していきます♪
コンセントのプランについては、
・持っている家電や新たに購入する予定の家電はどこにおくか?
・家具の配置のイメージは?
等をお伺いしながら決めていきます☺
また、照明プランについては、
・明かりが欲しい場所、それにつながるスイッチは動線上に来ているかどうか?
・明かりが落ちる場所に障害物がないかどうか?明るさは十分か?
・間接照明のご希望があるかどうか?
等をお伺いしながら決めていきます☺


また、家具の配置によってはデザインを変更する場合もあります。
今回お打ち合わせの中でS様が悩まれていたのが「ダイニングテーブルの配置について」
完成してからでいいじゃん!となってしまいそうですが、もちろんそれも可能です^^
しかし、はじめのうちに検討することで、ダイニングの照明の位置をきちんとテーブルの上に持ってくることができます。特に吊り下げ式のペンダントライトを検討されている場合はその位置が重要になってきます^^
また、今回のように天井がデザインとなってくる場合に、テーブルが少しずれたように見えてしまう可能性があります。なので、あらかじめその可能性をインテリアパースなどを用いて可視化して提示させていただくことでお客様が「こんなはずじゃなかった」を減らすことができます☺
下の2つのパースは、キッチンの横を通れるように通路を確保した際にダイニングテーブルがずれてくることをイメージ画像を作成して提示したものになります。
ただテーブルをずらして置く、こともできますが、それを想定して天井もそのラインに合わせて、下がり天井を延長することできれいに見えます✨
(左はただテーブルをずらしたパターン、右はテーブルのラインに合わせて天井を延長したパターン)


内装のお打ち合わせでは、当社で使用している3Dマイホームデザイナーのソフトを駆使しながら、インテリアの決定を進めていきました♪
壁紙の決定をした後は、リフォームならではの塗装色のお打ち合わせ♪
リフォームの場合には既存の窓枠を再利用していく場合が多いため、それらを塗装で塗りつぶしていきます。
既存のカーテンボックスの塗装の色を悩まれていたS様
壁紙がグレーなので、それに合わせてグレーで塗装をするか、もしくは窓枠に合わせて白で塗装するかを悩まれていました。
このような内容も下記のようなイメージ画像を作成してお打ち合わせをスムーズに進めてまいりました♪



▼
▼
▼




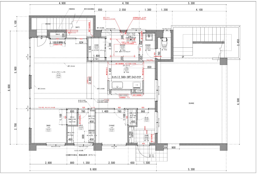
もともとホールとして使用していた1階は間仕切り壁が少なかったため、一部の間仕切り壁を撤去するだけで広々とした大空間が現れてきました。



もともとしっかりとした床材のS様邸では既存の床材を再利用しました。
無垢の床材を使用していたので、その表面を削り塗装をしなおす「研磨塗装」の工事にてリフレッシュを図ってまいりました♪
研磨塗装の場合、既存の床材の表面にカラーが入っているのかどうかなど、元の素材の色が不明なため、明確に色を想定することは難しいのですが、きちんと手入れをしていけば長く使える素材なので、再利用をお勧めすることが多いです☺
▼
▼
▼

▶

玄関
タイル張替え、住宅用の間口の玄関ドアへ取り換え✨
広々としたゆとりのある玄関空間へと生まれ変わりました✨

▶

キッチン
家の中心に配置したカウンター付きの対面キッチン✨
キッチンには沖縄の「火ヌ神」を設けました^^

▶

LDK
天井の高いS様邸、アクセントの木目の天井がより映えます✨
キッチン背面には造作の明かり採りの窓を設けました。

▶

LDK+寝室
LDKの横には間仕切りなしのオープンな寝室を設けました。
間仕切りが減ると空調も1台で回せるため節電にもなります。また、各方位から明かりがたっぷり降り注ぐLDK空間となりました♪

▶

LDK
LDKにはワンちゃんのトイレスペースを設けました☺
また、親の介護を機に今回のリノベーションをご計画されたS様邸。親世帯とつながる室内階段は既存残しとしました。

▶

子供室
子供部屋はコンパクトに!なるべくLDKへと集まる工夫をしました。
インテリアは白を基調とした明るく上品な空間に仕上がりました✨

▶

ファミリークローゼット
クローゼットの右側は長身のご主人専用で高さを設定しました✨
長身な方の場合、お洋服の丈の長さも長く、洋服をかけた際に床につかないような配慮が必要です。

▶

洗面脱衣室
水回りの床材は塩ビタイルで仕上げました^^
なるべく明るく仕上げたいというS様、すべての窓はふさがずに少しでも明かりを取り入れられるようにしました✨

▶

トイレ
当初は再利用をご希望されていたトイレ空間。工事が進んでくるとその差異が気になってくるということは多々見受けられます。
S様邸トイレも壁を含めてすべてをリフレッシュさせていただきました✨

▶

浴室
親の介護の際に1階の浴室を利用する想定で、それらに支障のないようなシャワールームとしました♪
脱衣の空間も室内干しができる広さを確保したので、介護の際の衣服の脱ぎ着もストレスなく対応できるようにしました。

▶

洗面脱衣室
脱衣室は家事室も兼ねた空間として広さを確保✨
大きな窓からは明かりが降り注ぎ気持ちの良い空間となりました♪
親の介護をきっかけにご実家の改修工事を決心したS様。
水回りはとてもこだわりがあり何度も熱心にショールーム見学されたことを覚えています♪
家づくりにおいてこだわる箇所はお客様によって多々・・・
見れば見るほど迷うし、どんどん金額も上がってしまう~😨という方も多くいらっしゃいますが、あとで後悔したときには取り換えるのに莫大な金額がかかってしまうので、ぜひ後悔のないように見てみてほしいです♪迷ったときには、当社のスタッフが同行してフラットにアドバイスをすることも可能です^^
インテリアに関しては、当初よりシンプルに、と一貫していたS様。そんなS様らしいシンプルでナチュラルな素敵な空間に仕上がったと思います。
インテリアは、建築としてはじめから壁紙などで整える方法もありますし、S様のように既に素敵な家具をお持ちの場合にはそれらを置いたときに映えるような空間を作る、という方法もあります☺
どんな場合においても、お打ち合わせにてサポートをさせていただくので遠慮なくいろんなことをお話しいただけたら嬉しく思います♪
S様、工事に携わった皆様、ありがとうございました★

対応エリア
那覇市、糸満市、豊見城市、南城市、与那原町、南風原町、八重瀬町、浦添市、宜野湾市、沖縄市、北谷町、西原町、中城村、北中城村 ※その他のエリアは要相談となります。