MENU

CL Planning
by 株式会社トーエイ建設産業
沖縄県島尻郡八重瀬町字東風平391-5

【那覇市】ステキな階段が主役『モダンクラシック×ナチュラルリビング』

スクロールできます
玄関ドアや靴箱の扉は既存の階段の色味に合わせました
リビングはナチュラルテイストで可愛らしく
キッチンからの眺め 個室の格子窓が可愛いアクセントに♪
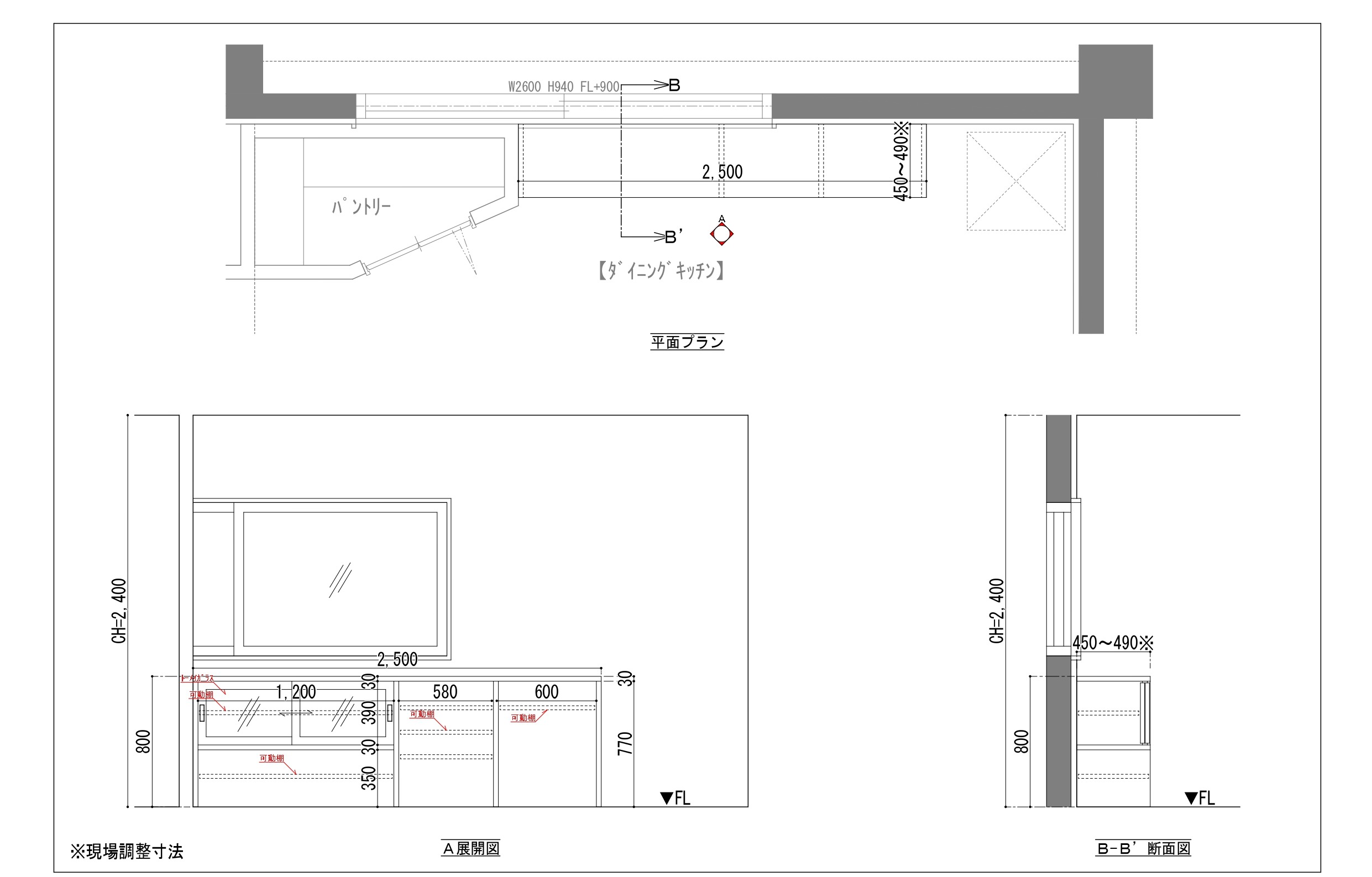
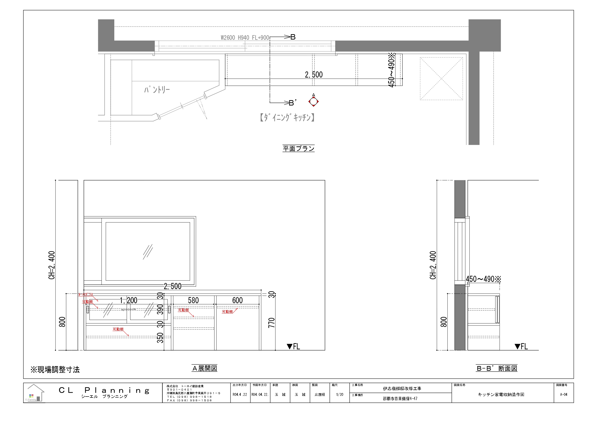
造作キッチン収納  
パントリー
明るいリビング
大きな掃き出し窓が開放的
寝室の隣にはウォークインクローゼット
タイトルアクセントタイルが目を惹きます
ヘリンボーンの床とグリーンのクロスがお洒落♪
脱衣室は使い勝手良く 収納とポールを設置
目次


ご相談内容

ご相談当初は「両親が住んでる実家の1階部分をリフォームして寝泊まりができるようにしたい」とのことでしたが、お話を進めていくなかで「両親の近くにいてあげたい」という想いで、本格的に1階部分を住居スペースとしてリノベーションするプランとなりました。

家族構成…ご夫婦、猫ちゃん2匹🐈🐈

ご要望
  • 絵が上手な母のために飾れる場所を作りたい
  • 父のお気に入りの階段はそのまま活かす
  • 間口や導線は車いす・歩行器に配慮
〔Before〕

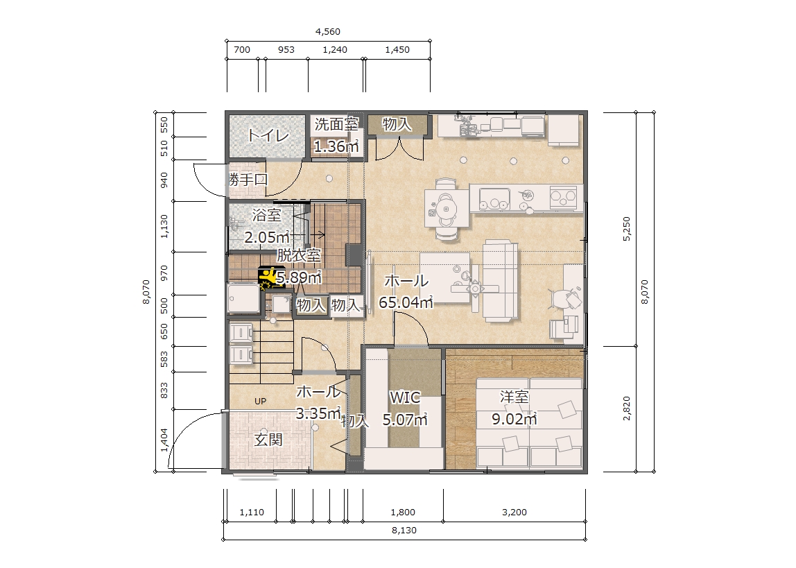
リノベーション前は、約33畳程の大空間。お母様が絵を描いたり、描いた絵を保管するアトリエとして使われていました。

設備としてはトイレとコンパクトキッチンのみ… この空間を快適な住まいへとプランニングしていきます♪




ご提案プラン

キッチン導線をスムーズにアイランド型キッチン
リビングの一角になんでもカウンター



より具体的にイメージできるよう、3Dパースでもご提案。イメージのすり合わせを行っていきます♪


最終プラン

  • ウォークインクローゼットと寝室を繋げて導線をスムーズに!
  • LDスペースを広くとるため、対面キッチンはアイランド型ではなく壁付けに!
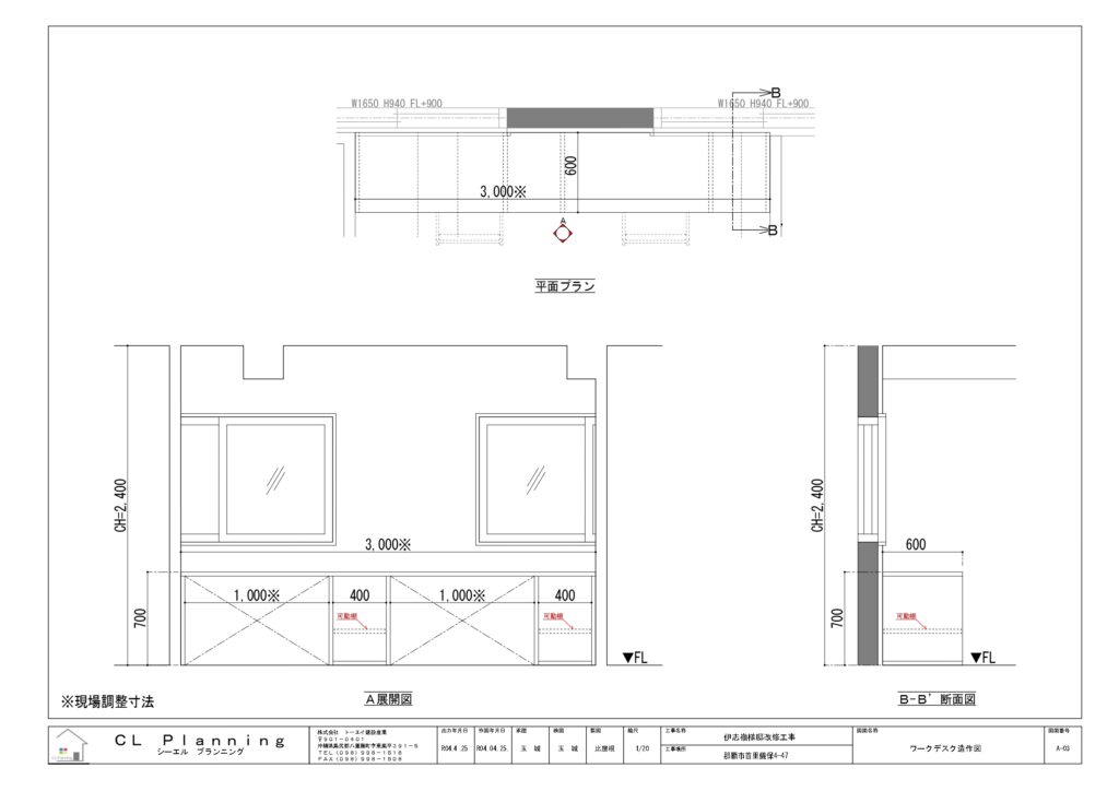
  • リビングにワークデスクを造作♪

CL Pianninngでは造作収納もご提案しております。

世界に一つ!自分仕様の特別なものに仕上がります。ご家族ごとに、生活スタイルに合わせて設計していきます。

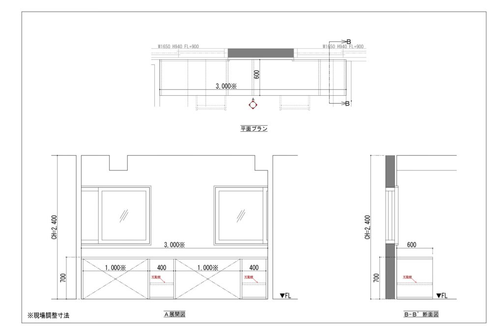
ワークデスク造作図
キッチン収納棚造作図
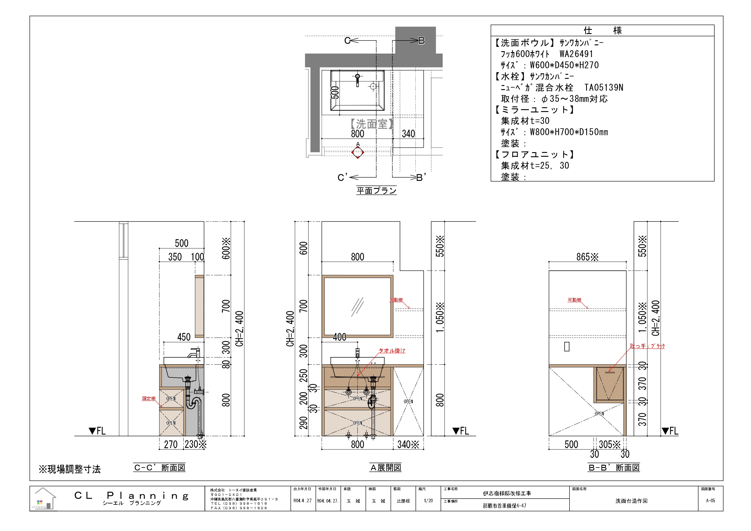
洗面台造作棚


着工!!

元々間仕切りのない広い空間だったので、解体箇所は少なく、個室となる箇所の間仕切り壁を新設していきます🔨

形になってきました♪

可動棚を入れていきます
お気に入りの食器が見えるように透明ガラス戸をチョイス!

棚板の枚数もご要望に合わせて決めています♪

PICK UP

元々あった造作収納の棚板がしっかりとした造りの板だったので、解体・研磨を施しきれいに整え、新設のパントリーの棚板に再利用。厚みもあるので、十分に役割を発揮してくれます!

窓の下の棚を解体・研磨して…

パントリーの棚板に!

PICK UP

玄関横の木格子のパーテーションは階段上へ。2階の廊下を行き来する際の転落防止のため取り付けました。引戸のようにスライドできるようにレールも施工しました♪

PICK UP

元々は蹴込み板のない透かし階段でしたが、二世帯仕様ということで、音や臭い漏れに配慮し蹴込み板を取り付けました。

PICK UP

構造上の都合で、キッチンダクトの配管がリビング側まで伸びてしまう…逆にそこを活かして猫ちゃんが上がれるよう板を乗せキャットウォーク仕様に🐈



コメント

▶︎

コメント

▶︎

コメント


before

after
before

after
before

after
before

after

沖縄でおしゃれな
フルリノベーションするなら
CL planning

「楽しむ」ための家づくり
「家事ラク」になる家づくり

よかったらシェアしてね!
  • URLをコピーしました!
  • URLをコピーしました!

株式会社トーエイ建設産業
沖縄県島尻郡八重瀬町字東風平391-5

駐車場のご案内▶︎

098-998-1518
(受付時間8:30〜17:30)

目次